Master

Master-Studiengang Kommunikation im Raum

Hochschule Mainz

Experimentieren. Forschen. Realisieren.

Interdisziplinäre Projektarbeit – mal praxisbezogen, mal forschungsorientiert – prägt das Innenarchitekturstudium an der Hochschule Mainz.

Das Ergebnis: Studentische Arbeiten, die ebenso vielfältig wie einzigartig sind.

Bewirb dich jetzt!

Bachelor

Entwurf Raum - New Work

Betreut von

Prof. Markus Pretnar

semester

Sommersemester 2020

Hochschule Mainz, Entwurf, Kommunikation im Raum, Master, Henrieke Kayser, Z3
Henrieke Kayser, Z3

Z3

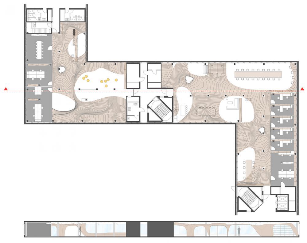
Es kann von überall aus gearbeitet werden. Was muss ein Büro also überhaupt noch leisten können oder ist es schlichtweg überflüssig geworden? Um den Wert des Büros in Zeiten der Digitalisierung als realen Ort deutlich zu machen, müssen die Funktionen auf die wesentlichen Qualitäten reduziert werden.

3 Anforderungen sind von zentraler Bedeutung und bilden die Grundlage für den Entwurf der Bürofläche:

Zone A:
Ein ruhiges Arbeitsklima, um konzentriertes Arbeiten (ohne temporäre Beschränkung) zu ermöglichen.
Zone B:
Eine flexible Umgebung, die sich den unterschiedlichen Arbeitsphasen und -gruppierungen anpassen kann.
Zone C:
Freiraum, um das soziale Gefüge zu fördern. Das physische Zusammenkommen ist wichtig und lässt sich nicht substituieren.

Die Zonen definieren klare Bereiche mit unterschiedlichen Raumqualitäten, die dem Team jederzeit zur Verfügung stehen. Die Mitarbeiter entscheiden jeden Tag aufs Neue, wie und wo sie arbeiten wollen. Innerhalb der Bürofläche heisst das, dass sie bestimmen, welches Arbeitsumfeld für ihre Tätigkeiten am geeignetsten ist.
Das Arbeiten im Büro ist in einem ständigen, dynamischen Wandel. Die Bürofläche bietet mit ihrer Struktur Raum für unterschiedliche Arbeitsweisen und -phasen an und kann somit den verschiedenen Anforderungen der Mitarbeiter gerecht werden.

Studierende

Henrieke Kayser

Office Home

Wofür ist ein Büro eigentlich noch gut, wenn alle zu Hause arbeiten können?
In Zukunft wird das Home Office immer mehr an Akzeptanz gewinnen. Doch das bedeutet nicht, dass Büros aussterben werden, sondern sich neu definieren müssen. Das Büro wird sich als Ort des Zusammentreffens und des Austauschs begreifen lassen. Die Kommunikation mit internen und externen Mitarbeitern steht so im Vordergrund. Gleichzeitig muss es aber auch Rückzugsmöglichkeiten geben. Nicht jeder kann und will seinen Arbeitsplatz nach Hause verlegen. Auch dem bewussten Wunsch der Grenzziehung zwischen Privatem und Geschäftlichem muss das Büro der Zukunft entsprechen.

Diesen zwei sehr gegensätzlichen Ansprüchen gilt es gerecht zu werden. Unterteilt wird der Grundriss deshalb in zwei differenzierte Zonen. Auf der einen Seite sollen sogenannte »aktive Arbeitsflächen« den Austausch untereinander anregen, während die »passiven Arbeitsräume« auf der anderen Seite, eine ruhige Arbeitsatmosphäre für konzentriertes Arbeiten schaffen. Unterstützt wird die Trennung der beiden Bereiche sowohl durch eine klare formale Unterscheidung, als auch durch eine farbliche Abgrenzung, die am Deckenspiegel er erkennen ist.

Die aktiven Arbeitsflächen werden durch einen offen gestalteten Grundriss hergestellt. Durch die Vor- und Rücksprünge der einzelnen Arbeitsbereiche entstehen Nischen, die für verschiedene Arten von Kurzmeetings genutzt werden können. Der Flur dient somit nicht einfach als Verkehrsweg, sondern wird aktiv als Kommunikationsfläche mitgestaltet.

Lediglich abgehängte Schiebewände schirmen die angrenzenden Arbeitsräume vom Flur ab. Dagegen grenzen sich die passiven Arbeitsräume bewusst durch geschlossene Wände und kleine Fensterfronten von den kommunikativen Flächen ab. Hier soll das konzentrierte Arbeiten gefördert und jegliche Ablenkung abschirmt werden.

Studierende

Nina Hattemer

MeWeUs

Jeder Mensch besteht aus einer Ansammlung von Gedanken, Gefühlen, Emotionen und Erfahrungen. - Wir sind nicht perfekt, und das ist es was es so spannend macht.- Die Idee war es einen Raum zu schaffen, der diesen Gedanken nimmt und weiter trägt.

Daraus entstanden ist eine raumbildende, organische Form, die mit Gegensätzen spielt, um Spannung zu schaffen und Atmosphäre in den Raum zu bringen. Ein Raum, der mich berührt, inspiriert und besondere Momente schafft. In großen Bürogebäuden bestehen unterschiedliche Nutzungsanforderungen an Räume. Um diese zu erfüllen wurde eine organische Form geplant, die in alle Räume ausstrahlt und das Büro in drei Zonen unterteilt.

Der Me-Bereich beinhaltet Einzelarbeitsplätze, kleine Bibliotheken, sowie die Möglichkeit für ruhige Telefonate. Der We-Bereich besteht aus einzelnen Büros, die durch Glasfronten in die offenen Haupträume ausstrahlen. Er ist für Team- und Gruppenarbeiten mit verschiedener Personenzahl gedacht. Der Us-Bereich ist der Raum in dem wir miteinander arbeiten, uns begegnen und entspannen. Zu ihm zählen das Ankommen, der Cafebereich, der Ruheraum und die offenen Projektplätze an den Projektbäumen. Das Herzstück der Figur bilden die Projektbäume. Aus ihr heraus erwächst das Objekt und fließt in die einzelnen Bereiche, um dort Raum entstehen zu lassen.

Die Figur ist ein Wechselspiel aus Höhen und Tiefen, die verschieden nutzbar sind. Die Projektbäume bilden einen experimentellen Raum. Ein Ort des spontanen Austauschs, der unterschiedlich bespielt werden kann. Um ein Spiel aus Gegensätzen zu schaffen, durchbrechen geometrische Formen die Figur. Teilweise nur in kurzen Augenblicken, wo starre Regale die Figur kreuzen.

Studierende

Arlette Schreier

Pfeil am Textende

Mehr entdecken