Master

Master-Studiengang Kommunikation im Raum

Hochschule Mainz

Experimentieren. Forschen. Realisieren.

Interdisziplinäre Projektarbeit – mal praxisbezogen, mal forschungsorientiert – prägt das Innenarchitekturstudium an der Hochschule Mainz.

Das Ergebnis: Studentische Arbeiten, die ebenso vielfältig wie einzigartig sind.

Bewirb dich jetzt!

Bachelor

Masterthesis - Spielfeld

Betreut von

Prof. Antje Krauter
Prof. Bernd Benninghoff

Semester

Wintersemester 2021/22

Studentin

Stella Funk

MA_Thesis_bdia_Auszeichnung_Spielfeld_Funk_WiSe21
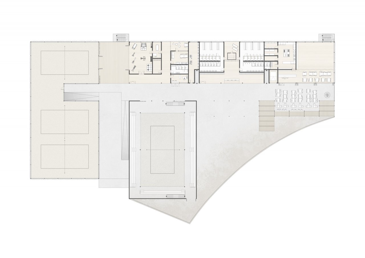
Spielfeld mit Tribühnen

Wie wirkt sich die Architektur auf die Identität einer Sportart aus?

Stellvertretend für viele weitere junge Sportarten habe ich mich mit dem Beachvolleyball auseinander gesetzt. Leider werden hier gestalterische Möglichkeiten in Bezug auf Architektur und Sportkultur bisher kaum oder gar nicht genutzt. Ziel meiner Thesis war es eine individuelle Bauform für die Sportart zu finden, die mit ihrer Ästhetik und Funktionalität dem weltoffenen, bodenständigen und umweltbewussten Charakter des Beachvolleyballs entspricht. Dazu war es notwendig den Geist des Sportes zu hinterfragen und eine zeitgerechte sowie nachhaltige Lösung zu finden, die die Anforderungen des Sportes erfüllt.

MA_Thesis_bdia_Auszeichnung_Spielfeld_Funk_WiSe21
Visualisierung der Umkleiden
MA_Thesis_bdia_Auszeichnung_Spielfeld_Funk_WiSe21

Zudem lag der Fokus auf der Gestaltung des unmittelbaren kulturellen Umfelds, welche der Wirtschaftlichkeit und somit auch der vielversprechenden Zukunft der Sportart dient. Mit dem Entwurf „Spielfeld“ ist auf einem Parkhausdeck in der Innenstadt von Mainz ein zukunftsorientierter Entwurf entstanden, der eine neue Form der Sportarchitektur unter Berücksichtigung von heutigen Städtebaulichen Herausforderungen vereint.

MA_Thesis_bdia_Auszeichnung_Spielfeld_Funk_WiSe21
Außenperspektive
Pfeil am Textende

Mehr entdecken