Bachelor

Bachelor-Studiengang Innenarchitektur

Hochschule Mainz

Das 7-semestrige Vollzeitstudium Innenarchitektur B.A. an der Hochschule Mainz spiegelt in seiner modularen Struktur die große Vielseitigkeit des Innenarchitekturberufs wider. Mit einem ganzheitlich angelegten Lehrplan befähigen wir die Studierenden, sich individuell zu entwickeln und sich in einem breiten Tätigkeitsfeld gezielt zu positionieren. In praxisnaher Projektarbeit vermittelt das interdisziplinär zusammengesetzte Lehrteam ein breites Grundlagenwissen zur künstlerisch-konstruktiven Raumgestaltung. Dieses kann in unserem 3-semestrigen Masterstudiengang Kommunikation im Raum weiter vertieft werden. Bewirb dich jetzt!

Master

Masterthesis - Safespace Jugendtreff

Betreut von

Prof. Antje Krauter
Prof. Bernd Benninghoff

Semester

Wintersemester 2023/24

Student

Paul-Christian Wagner

Soziale Ungleichheit bleibt in Deutschland ein großes Problem, insbesondere für Kinder und Jugendliche. Die Zahlen zur Kinderarmut sind besorgniserregend: Etwa ein Viertel aller Kin¬der und Jugendlichen in Deutschland erfahren Bedrohungen durch Armut oder soziale Ausgrenzung.
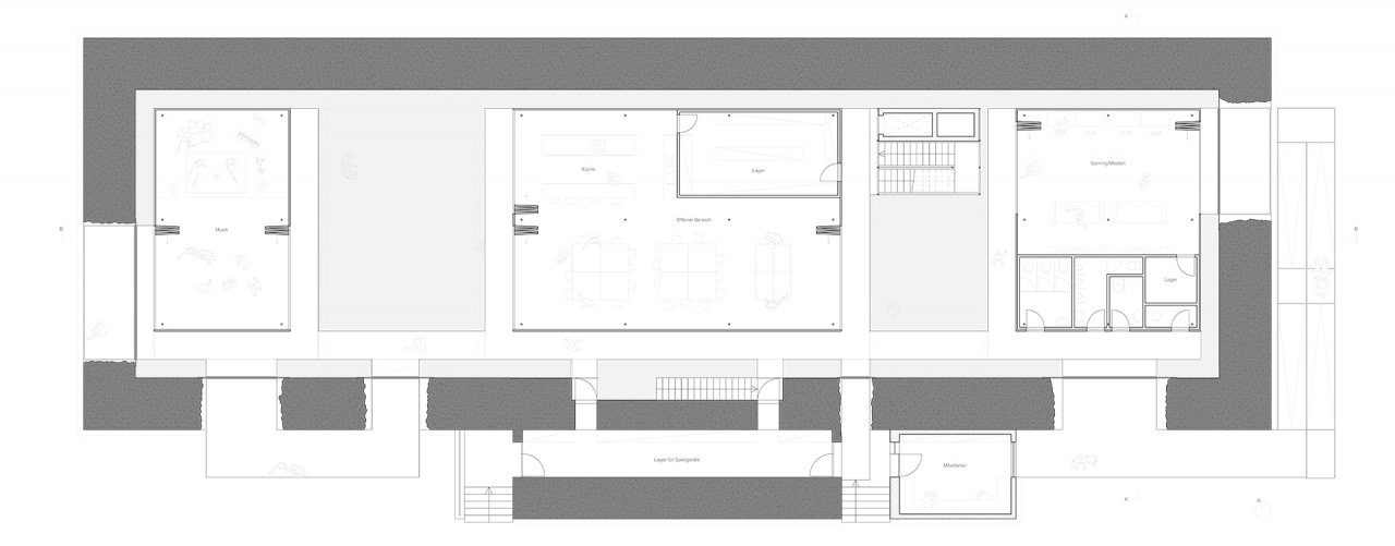
Safespace Jugendtreff soll insbesondere für sozioökonomisch benachteiligte Kinder und Jugendliche ein Ort sein, an dem Notwendigkeiten erfüllt werden und Bedürfnisse befriedigt werden, für die zu Hause sonst kein Raum ist.

Ein leerstehender Weltkriegsbunker inmitten eines sozialen Brennpunktes meiner Heimatstadt Mannheim wird zum Standort des Jugendtreffs. Ein historisch stark negativ belasteter Ort erhält eine völlig neue Bedeutung, ohne seine Identität zu verleugnen oder seinen Schutzcharakter zu verlieren. Die neue Architektur setzt sich wie ein Einsiedlerkrebs in die leere Bunkerhülle und füllt sie mit neuem Leben.

Pfeil am Textende

Mehr entdecken