Master

Master-Studiengang Kommunikation im Raum

Hochschule Mainz

Experimentieren. Forschen. Realisieren.

Interdisziplinäre Projektarbeit – mal praxisbezogen, mal forschungsorientiert – prägt das Innenarchitekturstudium an der Hochschule Mainz.

Das Ergebnis: Studentische Arbeiten, die ebenso vielfältig wie einzigartig sind.

Bewirb dich jetzt!

Bachelor

Praxisprojekt - Wohnzimmerbibliothek

Betreut von

Prof. Alexa Hartig
Prof. Lutz Büsing

Semester

Sommersemester 2023

Studierende

Hanna Fritz
Leonie Poch
Alexandra Trapper

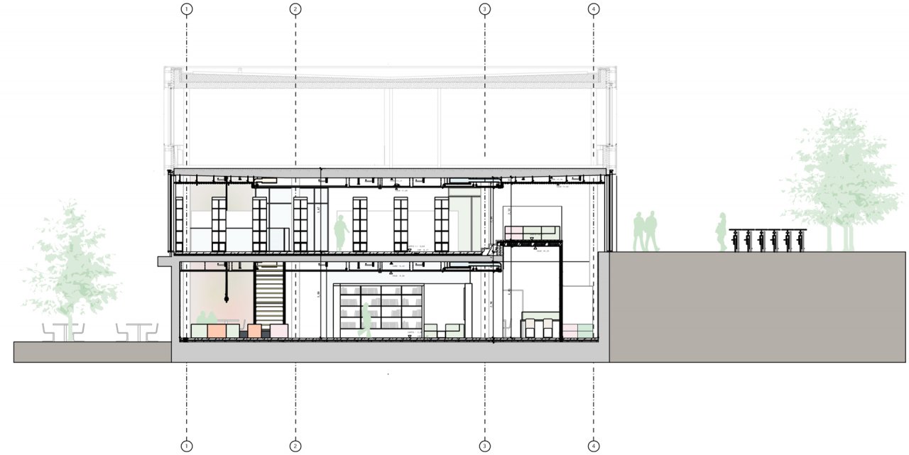
Bibliothek am Campus Lucy-Hillebrand-Straße Mainz

Der Umzug des Standorts der Hochschule Mainz auf den Campus bietet die Möglichkeit die Hochschulbibliothek als WOHNZIMMERBIBLIOTHEK neu zu denken. Es sollen Räume für Erholung, soziale Interaktion, Austausch und Lernen geschaffen werden, weg von einer „pscht-Kultur“ hin zu einer lebhaften offenen Umgebung. Gestalterisch kann diese Veränderung durch das Schaffen unterschiedlicher Funktionsräume erreicht werden:
1 lebhafte Bereiche für GRUPPENARBEITEN
2 RUHIGE BEREICHE für konzentriertes Lernen
3 ÜBERGANGSZONEN
4 AUFENTHALTSBEREICHE zum gemeinsamen Austausch

Die Farbgestaltung mit verschiedenen Nuancen von Rosa, Grün und Orange spiegelt den Farbverlauf der japanischen Zierkirsche im Innenhof der Bibliothek wider.Diese Farben finden sich bewusst zurückhaltend in den Polstermöbeln, sowie den geschossverbindenden Akustikpanelen wieder. Letztere sollen die Verbundenheit aller Nutzer:innen symbolisieren, welche die verschiedenen Raumqualitäten der Bibliothek nutzen um diese zu ihrem individuellen Wohnzimmer werden zu lassen.

Da die Bibliothek rund um die Uhr geöffnet sein soll, setzten sich die Studierenden intensiv mit der künstlichen Beleuchtung auseinander. Das Lichtkonzept der WOHNZIMMERBIBLIOTHEK orientiert sich an der Beleuchtungstheorie von Richard Kelly.

Es beinhaltet das Licht zum Sehen, Hinsehen und Ansehen. Eine gleichmäßige Grundbeleuchtung durch Invia 48V Stromschienen der Firma erco schafft angenehme Lichtverhältnisse zum Lernen und Arbeiten sowie zum gemeinsamen Aufhalten in der Bibliothek. Die Stromschienen ermöglichen es, den Raum gleichmäßig auszuleuchten und sich gleichzeitig in das lineare Gestaltungskonzept der Decke einzugliedern. Sie sind mit Casambi Bluetooth ausgestattet. So können vorprogrammierte Lichtszenen hinterlegt werden, die es ermöglichen, die Bibliothek rund um die Uhr entsprechend zu beleuchten.

Ergänzt wird die Grundbeleuchtung durch bei Bedarf einschaltbare Leuchten an Arbeits- und Aufenthaltsbereichen. Dadurch können Student:innen die Lichtverhältnisse individuell an ihre Bedürfnisse anpassen. Akzentuierte Beleuchtung an den geschossverbindenden Akustikpaneelen vervollständigt das Konzept.

Falschfarbenplan EG
Falschfarbenplan EG
Schnitt durch Ebenen
Schnitt durch Ebenen

Pfeil am Textende

Mehr entdecken